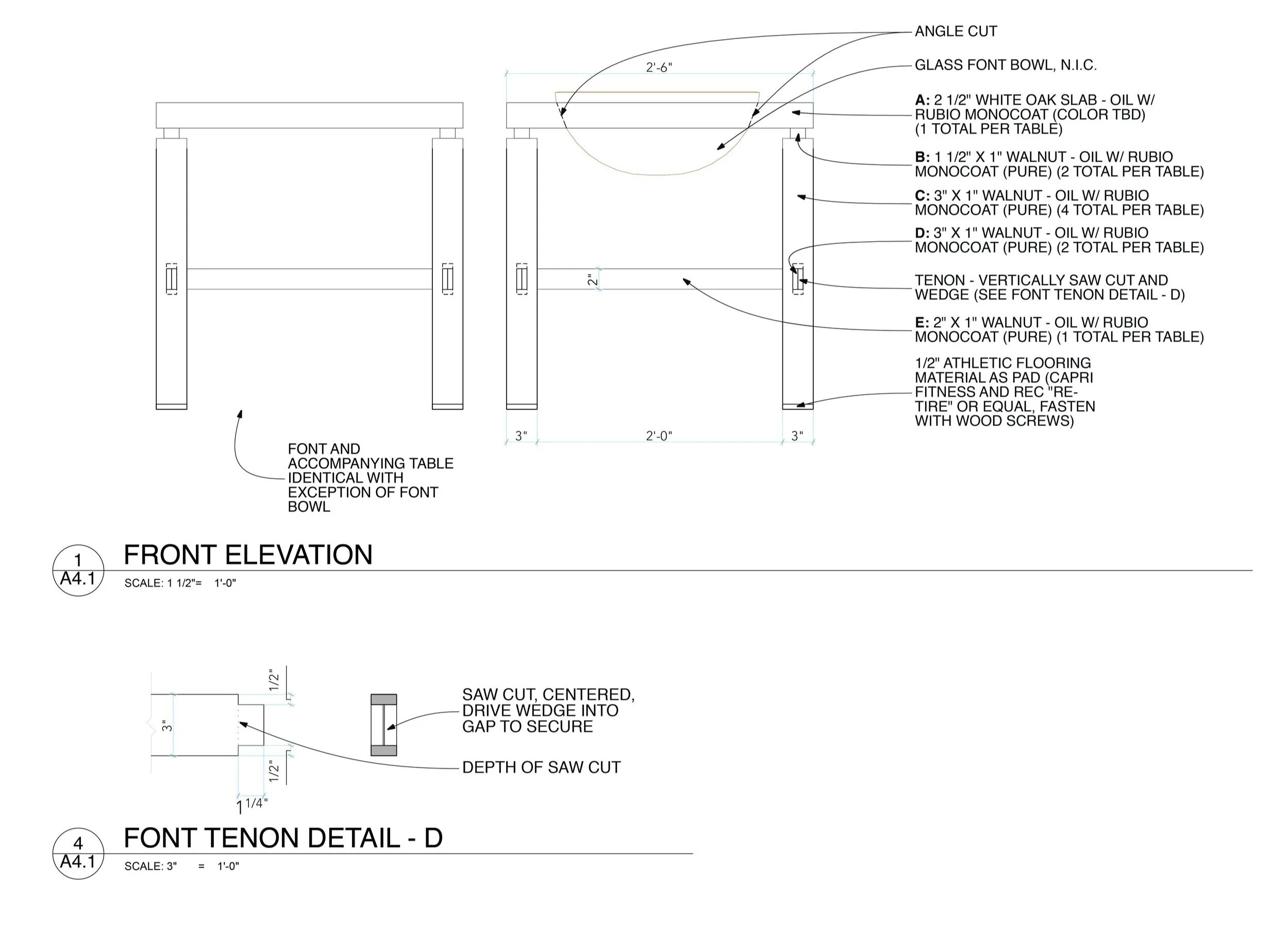
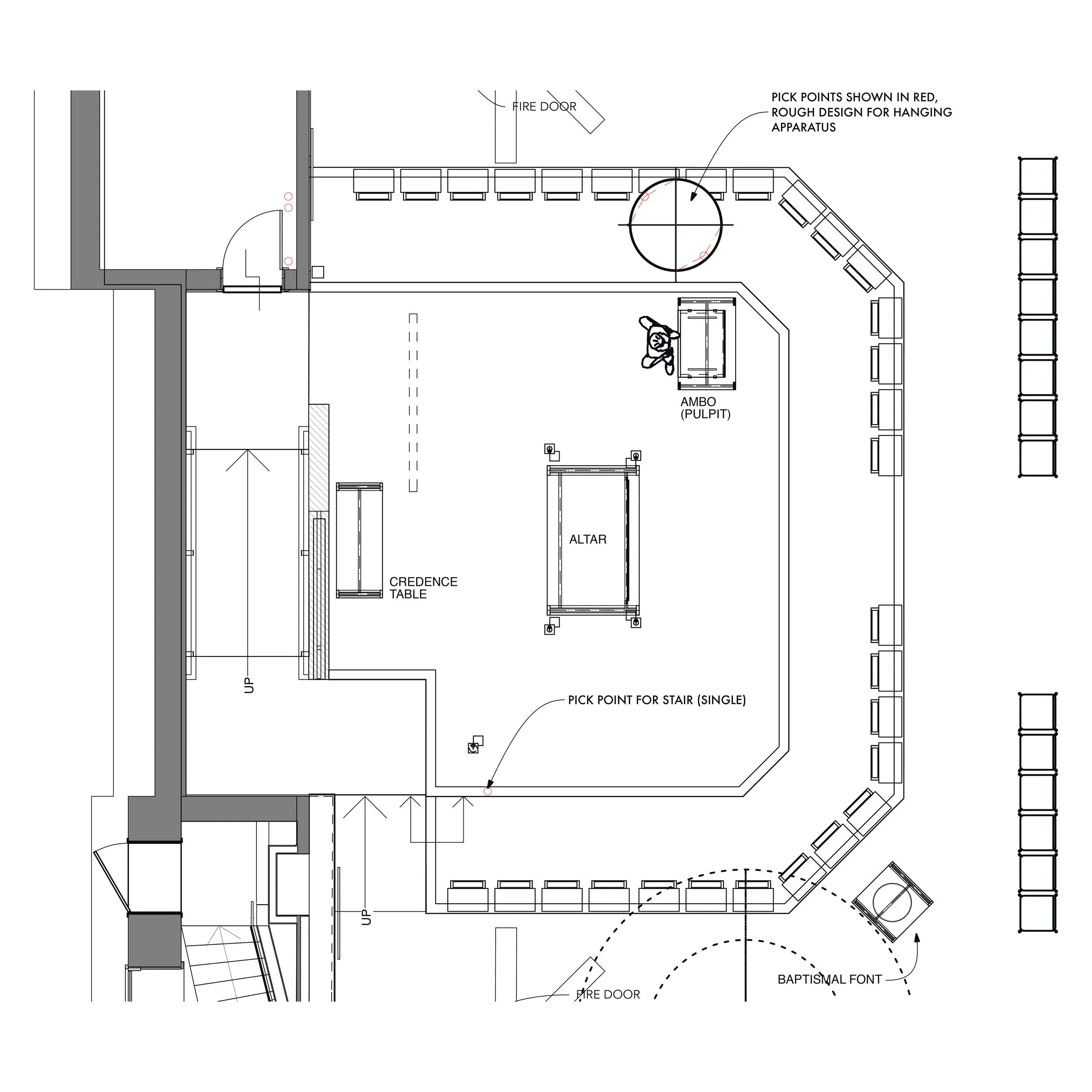
chancel furniture

Along with new acoustic diffusers, the congregation at First Lutheran also wanted Locus to design new chancel furniture, which included an ambo, credence table, altar table, baptismal font, 30 kneelers, and 6 custom candle holders. Working with Locus leadership, I helped to conceptualize and solidify the design of each furniture element and their unifying qualities as a whole set. I produced the shop drawings and sketch renderings you see below.